architekturbüro karamanlis
Projekt 1 Bild 1 Projekt 1 Bild 2 Projekt 1 Bild 3 Projekt 1 Bild 5 Projekt 1 Bild 6 Projekt 1 Bild 7 Projekt 1 Bild 8
Bildrechte: Architekturbüro Karamanlis
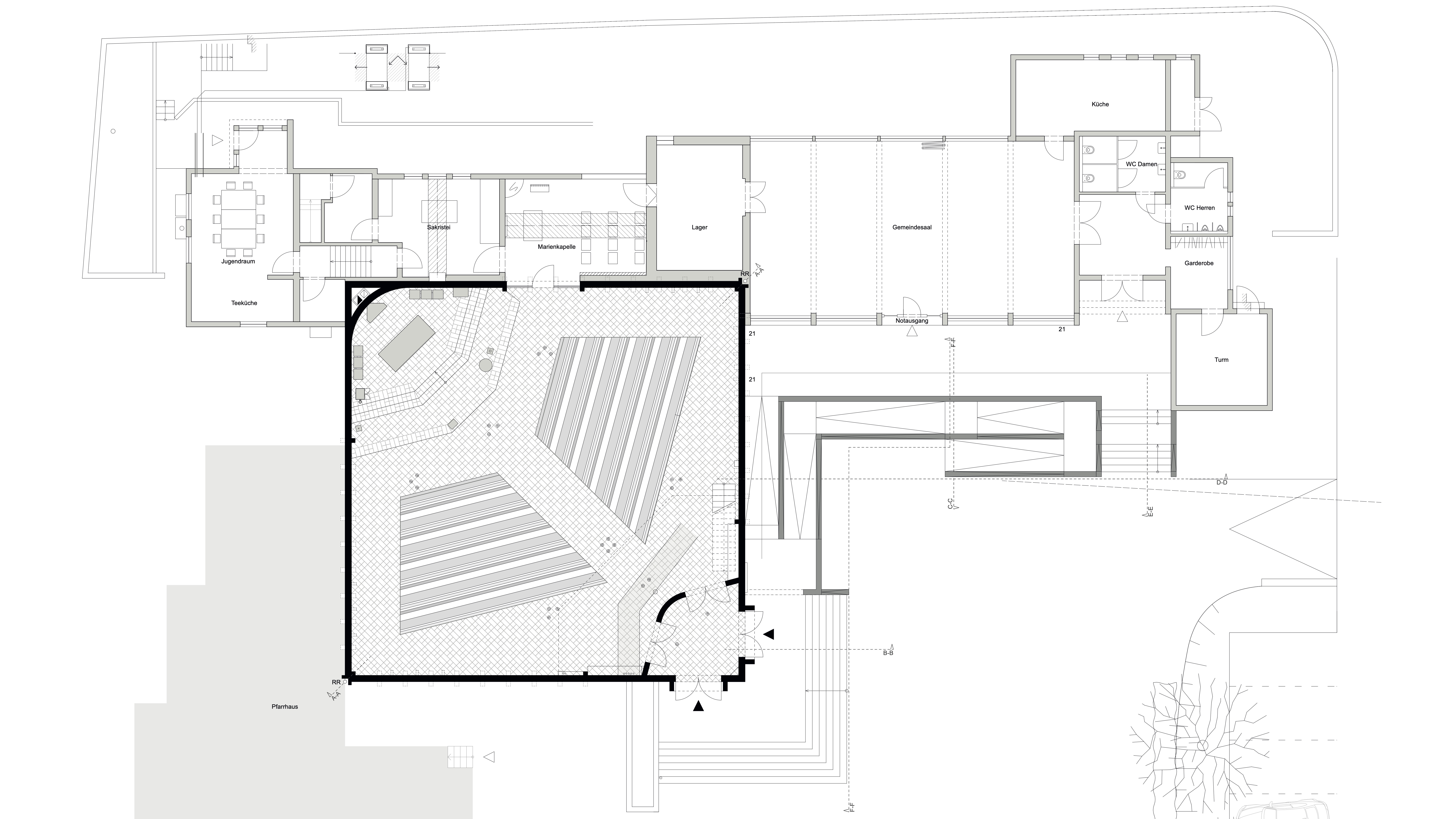
Modernisierung der Kirche St. Martinus in Herbrechtingen-Bolheim
Die Kirche St. Martinus wurde im Jahr 1961 von den Gemeindemitgliedern größtenteils selbst errichtet und seitdem nur sporadisch saniert. Der in Folge dessen entstandene Sanierungsstau endete in einer Modernisierungsmaßnahme, die unter anderem die statische Ertüchtigung und Herstellung eines neuen Daches beinhaltete, sämtliche Inneneinrichtungsgegenstände wurden erneuert, der Boden neu verlegt und die Technische Gebäudeausrüstung ertüchtigt. Neben einer PV-Anlage installierte man eine neue Warmwasser-Bankheizung und erstellte ein neues Lichtkonzept. Außerdem wurde der gesamte Kirchhof neu gestaltet, ein barrierefreier Zugang errichtet und die Gebäudekubaturen wurden von außen instand gesetzt. Neben dem Hauptgebäude, der Kirche, wurde auch das Dach des Gemeindesaals neu abgedichtet und die Räumlichkeiten gestrichen. Als erwähnenswerte Arbeit wurden ebenfalls alle liturgischen Orte der Kirche saniert, repariert und ergänzt, die Kirchenbänke wurden aus dem alten abgeschliffenen Holz in einer anderen Anordnung wieder aufgebaut und die Pendelleuchten im Kircheninneren wurden ertüchtigt. Neben der Planung drehte sich dieses Bauvorhaben vor allem um unvorhergesehene Arbeiten, wie einen Wasserschaden und Rohrbruch unter der Bodenplatte der Kirche, sowie um den sensiblen Umgang mit Gegenständen von besonderer kirchlicher Bedeutung. Die im November 2021 eingeweihte Kirche St. Martinus in Bolheim wurde erst im Sommer 2022 fertiggestellt, da durch den damaligen Baustoffmangel einige Arbeiten im Außenraum nicht wie vereinbart im erstellten Zeitplan erfüllt werden konnten.
Projekt 2 Bild 1 Projekt 2 Bild 2 Projekt 2 Bild 3
Bildrechte: Architekturbüro Karamanlis
Projekt folgt in Kürze...
Beschreibung folgt in Kürze...
Projekt 3 Bild 1 Projekt 3 Bild 2 Projekt 3 Bild 3
Bildrechte: Architekturbüro Karamanlis
Projekt folgt in Kürze...
Beschreibung folgt in Kürze...